Une petite surface a elle aussi droit à une déco classe et soignée.
Elle sera même un terrain de jeu idéal pour les férus de décoration d’intérieur et d’aménagements malins !
Pour trouver les idées qui feront de votre petit chez vous un nid coquet et bien pensé, voici 13 exemples de petites surfaces optimisées avec goût !
01 | Aménager une petite surface avec un lit mezzanine
Une unique pièce de vie présentant différents espaces bien délimités les uns des autres vous semble être un résultat impossible ?
Les Lofts Zoku sont la preuve que vous avez tort et que l’on peut vivre dans un volume ouvert, design et fonctionnel à la fois !

Il s’agit ici d’investir la hauteur sous plafond afin d’y créer un espace nuit en mezzanine, complètement intégré à la décoration.
La cloison en claustra de bois clair est ici une solution graphique et chaleureuse qui permet de bien délimiter les espaces.
Son aspect ajouré laisse circuler la lumière naturelle et laisse la chambre profiter de cette ouverture sur l’extérieur.
L’escalier escamotable menant au lit vient se dissimuler dans un ensemble composé de modules de rangements très pratiques.
Un petit appartement dont chaque élément est pensé pour gagner de la place et faciliter la vie quotidienne.
Il s’agit ici d’investir la hauteur sous plafond afin d’y créer un espace nuit en mezzanine, complètement intégré à la décoration.
- Réalisation : Zoku
02 | Une chambre verrière dans un petit espace optimisé de 34m²
Malgré sa petite surface, rien ne manque à ce studio en matière de confort !
Profitant d’un pan de mur entier de baies vitrées donnant sur une terrasse, chacun des différents espaces de vie profite de la lumière naturelle !
Cuisine ouverte, séjour et coin salon y sont baignés de soleil et même la chambre à coucher profite d’une belle luminosité.
chacun des différents espaces de vie profite de la lumière naturelle !

L’utilisation d’une verrière entre l’espace nuit et la pièce principale est en effet l’atout charme de ce petit logement.
Complètement repensé, l’aménagement d’un petit espace peut gagner en confort, en cohérence et en capacité de rangement.
Des parois tapissées de placards au coloris se fondant aux autres murs de la pièce sont une solution gain de place qui reste visuellement très légère.
- Réalisation : Bardin Architecte – Projet Quadrat
- Photo : Rémy Bardin
03 | Aménagement d’un petit appartement sous les toits
Un appartement sous les toits est forcément synonyme de contraintes lorsqu’il s’agit de rénovation et d’aménagement intérieur.
Mais bien menés, ces réaménagements peuvent facilement détrôner des projets plus classiques en misant sur leur charme unique !
La preuve ici avec cet appartement au style bohème chic qui compense sa faible hauteur sous plafond en faisant rentrer nature et luminosité à l’intérieur.
Murs blancs, parquet clair, carrelage immaculé dans les pièces d’eau et mobilier en bois et blanc : place ici à la lumière !
Afin de combler un manque de hauteur, l’ensemble du mobilier et des rangements prend place en partie basse.
Afin de combler un manque de hauteur, l’ensemble du mobilier et des rangements prend place en partie basse.
Les murs sont en grande partie laissés libres pour ne pas empiéter sur la verticalité.
Plantes vertes et matériaux naturels sont partout présents : la nature s’invite en intérieur et y apporte une belle sensation d’espace !

- Réalisation : Nomad Eleven – Projet Saint-Yvon
- Photo : Yann Werdefroy
04 | Aménagement d’un studio de 13m² avec 4 couchages
La déco d’un petit studio tel que ce 13m² moderne et raffiné demande pas mal d’astuces et une grande attention portée aux détails.
La mezzanine est la solution de couchage pour ce petit espace qui peut accueillir jusqu’à 4 personnes grâce à son canapé convertible.
Côté mobilier les coloris clairs sont de mise et l’essentiel y est : table de bistrot en marbre, tabourets design et pliables, table basse ronde.
- Réalisation : Nicolas Payet – Marn Déco – Projet Studio Paris 15ème
- Photo : Nicolas Payet
05 | Idée d’aménagement pour un studio de 18m²
Ce studio à la déco vintage a bénéficié d’une rénovation lui permettant d’optimiser l’espace et de gagner un grand volume de rangement.
Son mur de placards et tiroirs dessiné sur mesure vient délimiter les 2 espaces principaux de manière astucieuse.
L’accès à l’espace nuit se fait par une ouverture située dans l’alignement des fenêtres existantes : la luminosité de l’ensemble est ainsi assurée.

- Réalisation : Laura LOUSTAU – Paris 19 Appartement – 18m²
- Photo : Shoootin
06 | Aménager une petite surface en récupérant les combles
Comment optimiser l’espace d’une petite surface ?
La chance que nous avons eu dans ce projet est de récupérer les combles, ce qui a permis de gagner plus d’un mètre au plus haut.
Grâce à cela, nous avons pu créer une mezzanine et créer un espace couchage séparé et indépendant, permettant de libérer plusieurs m² au sol et d’éviter le traditionnel canapé-lit ou le lit-armoire.
On gagne donc aussi en confort, en pouvant profiter de chaque espace séparément et en n’ayant pas à bouger l’un pour jouir de l’autre (seule l’échelle est à déplacer, et encore, on peut la laisser et passer dessous !)
Margaux Carnevali - NEVA Architecture Intérieure
Ce studio situé à Vincennes est doté d’une belle hauteur sous plafond et mise sur le charme des matériaux authentiques.
Ses combles ont été récupérés pour y créer une mezzanine au-dessus de l’espace repas, laissant la partie séjour jouir d’un beau volume.
Une solution qui permet de créer une vraie chambre en hauteur et sans vis-à-vis pour plus d‘intimité.
Une solution qui permet de créer une vraie chambre en hauteur et sans vis-à-vis pour plus d’intimité.
La cuisine fait face au coin-repas aménagé en une tablette haute et bien profonde, sous laquelle des chaises de bar viennent se glisser.
Et si la disposition de ce studio est tout à fait moderne, son mélange de matériaux sait jouer la carte de l’ancien !
Parquet, mur de brique, poutres apparentes viennent contrebalancer la partie mezzanine au bleu Majorelle plein de pep’s.
- Réalisation : NEVA Architecture Intérieure – Margaux Carnevali
- Photo : Agathe Tissier
07 | Idée déco pour un appartement optimisé
Les grands volumes n’ont pas l’apanage des déco lumineuses et soignées.
Ce petit appartement en est la preuve avec son style frais et cosy à la déco scandi chic non surchargée.
Le mobilier multifonction, comme l’escalier-bibliothèque menant à la chambre, permet d’y gagner de la place avec originalité.
Le mobilier multifonction, comme l’escalier-bibliothèque menant à la chambre, permet d’y gagner de la place avec originalité.
L’utilisation d’ouvertures de type verrières permet à la lumière naturelle de circuler dans cette surface réduite.
Couleurs des murs, revêtements de sols et différences de niveaux permettent de délimiter les espaces dans cet aménagement bien pensé.
- Réalisation : Chef de Chantier – Rue Boulay Paris 17eme
- Photo : Shoootin
08 | Aménagement optimal d’un petit espace de 12m²
Une sensation d’espace dans un 12m² : c’est le pari réussi de Charlotte Astruc avec cet aménagement de studio astucieux.
Le duo bois et blanc y est privilégié dans une grande sobriété visuellement très légère.
Le mobilier sert un confort d’utilisation au quotidien et dissimule de nombreux rangements dont les petits espaces sont si friands !

- Réalisation : Charlotte Astruc – Astruc Archi – Bonne Nouvelle Studio 12 m²
- Photo : Arthur de Tassigny
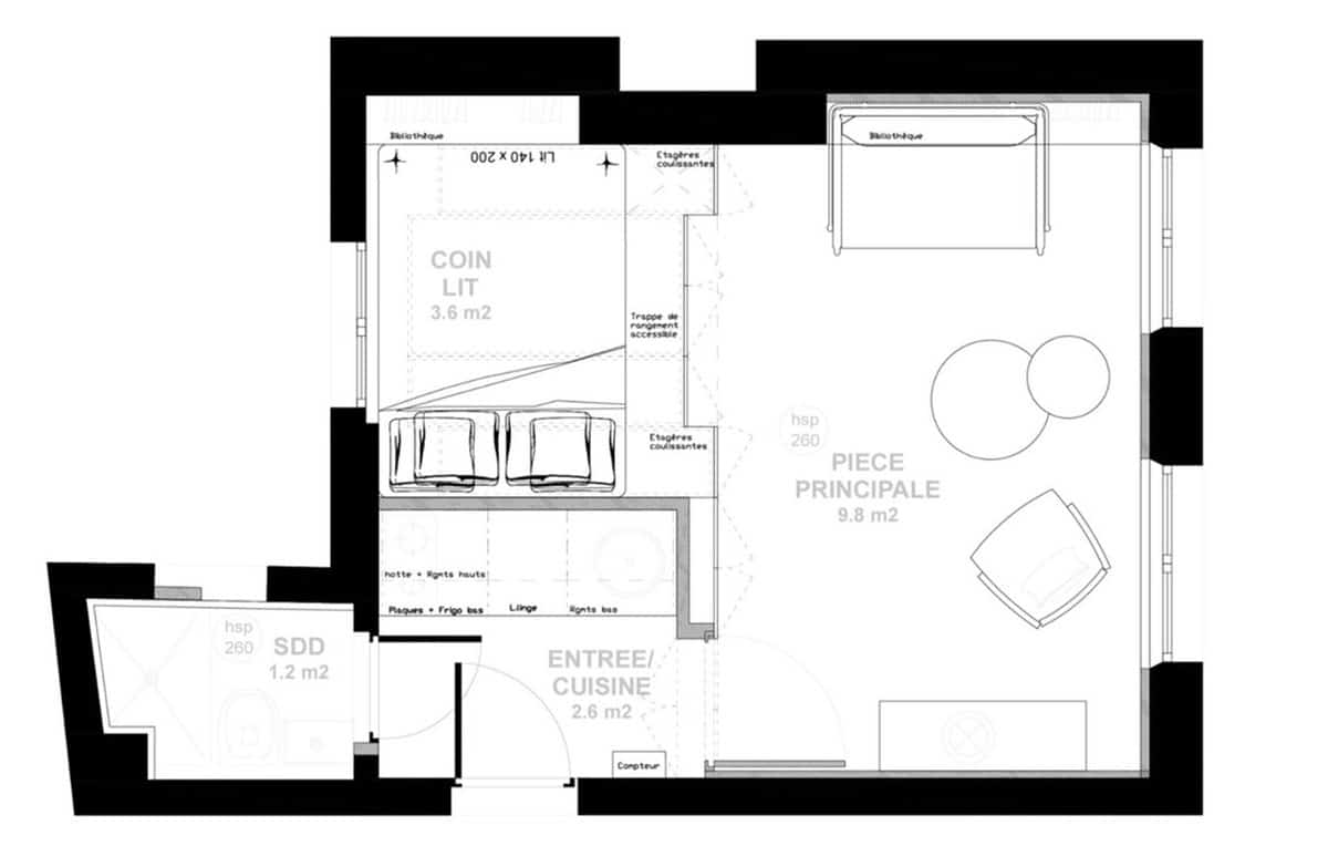
09 | Comment aménager une chambre dans un petit appartement ?
Ce petit appartement possède une véritable chambre combinant lit-estrade et verrière donnant sur le séjour.
Un beau volume de rangement est ainsi récupéré en partie basse : escalier à caissons, rangements coulissants et même lave-linge y prennent place.
La verrière permet à la lumière de pénétrer dans la chambre où un rideau en lin pourra si besoin être tiré pour plus d’intimité.
- Réalisation : Chef de Chantier – Petit studio de 32m²
- Photo : Shoootin
10 | Aménager une ancienne chambre de bonne de 13m²
Rénover une ancienne chambre de bonne avec goût et astuce n’est pas chose aisée.
Le résultat est ici réussi puisque cette petite surface dispose d’un style affirmé et de tous les éléments nécessaires à la vie quotidienne.
Une déclinaison de verts s’y déploie de la cuisine à l’entrée en passant par les éléments de rangement et crée une belle unité.
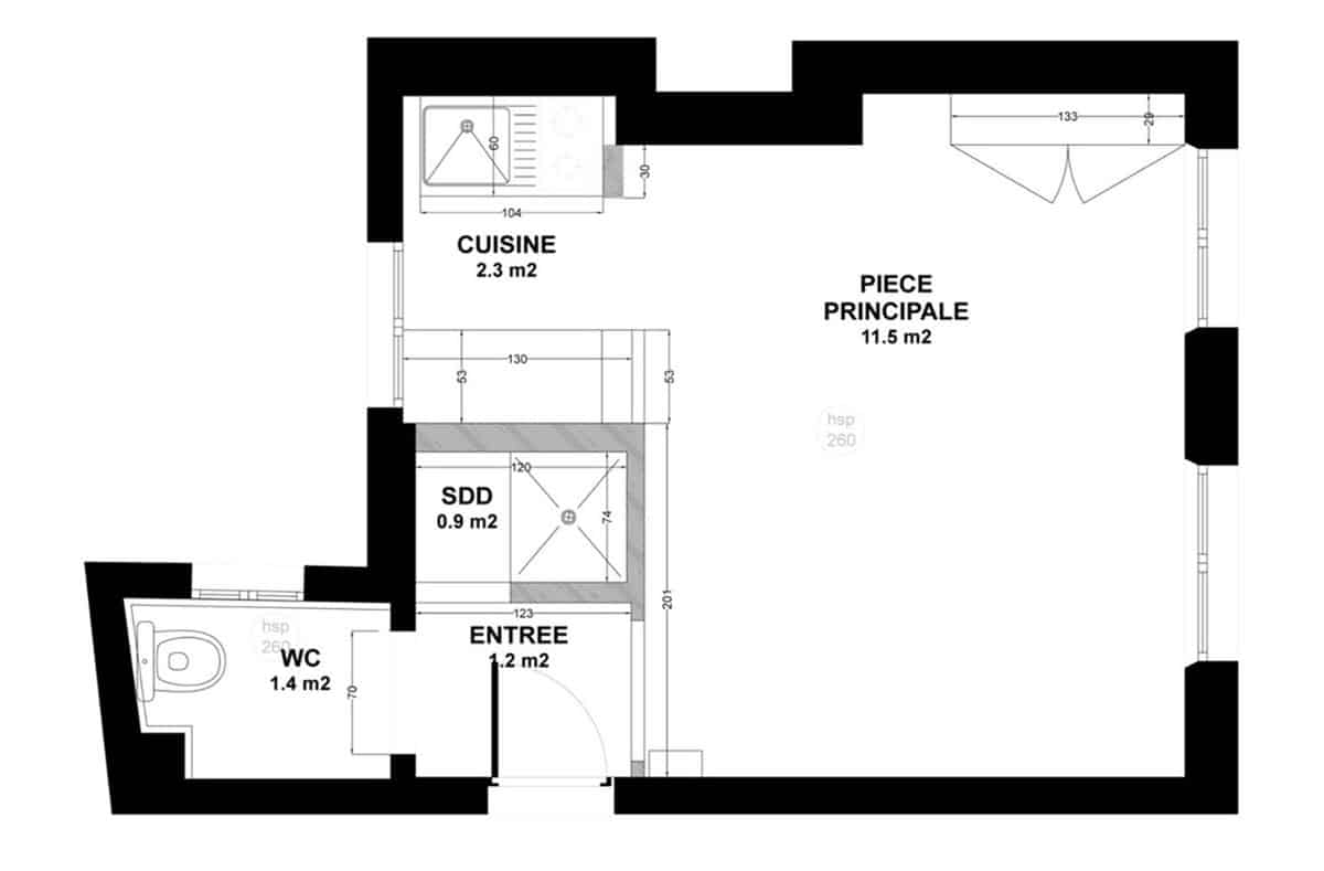
Comment réussir l’aménagement d’un petit studio ?
Quelques pré-requis pour aménager de manière fonctionnelle une studette : une géométrie simple de la surface, une belle hauteur sous-plafond, un budget souple (sur-mesure et vétusté souvent liés à ce type de bien).
Le petit plus pour gagner quelques cm² : rassembler les pièces techniques cuisine et SDB.
Aussi, ne pas négliger l’apparence de ces pièces et même chercher à en faire l’atout des lieux.
Pour ce faire, jouer avec la déclinaison d’une couleur comme fil conducteur qui donnera du cachet à la petite surface.
Aude Groshaeny – architecte d’intérieur Décodage Création
L’attention est portée aux détails déco : porte à persiennes, touches de jaune et de verts pour une ambiance vacances pleine de soleil.
La hauteur sous plafond est mise en valeur dans le coin bureau grâce à des cubes déco et à des rideaux fixés bien haut.
- Réalisation : Aude Groshaeny – Décodage Création – Dessous les toits parisiens
- Photo : Thibault Pousset
11 | Optimiser l’espace d’un studio en exploitant chaque centimètre carré
Ce petit studio en blanc, bois et vert céladon dispose d’une cuisine aménagée bien séparée du reste du logement.
Le coin séjour y présente une déco particulièrement cosy et une belle luminosité.
Un point important qui permet à l’espace nuit situé derrière une verrière de disposer d’une lumière naturelle toujours bienvenue !
- Réalisation : Ever Invest – Projet 3 rue de la Louisiane
12 | Idée déco pour une petite surface optimisée
Voici un petit appartement qui joue la carte d’une déco industrielle uniforme et qui le fait avec classe !
Prédominance du bois et du métal, association de différentes tonalités de bruns et de gris : un univers masculin mais un résultat raffiné.
- La verrière d’angle permet à la chambre de s’étoffer et à l’ensemble de l’appartement de gagner une belle sensation d’espace !
Autre atout de ce projet de rénovation : sa cuisine avec îlot central de belle taille pour cuisiner et manger en étant bien installé !
- Réalisation : Anne Chemineau – Décor Intérieur
- Photo : Meero
13 | Optimiser l’aménagement d’un studio avec des meubles modulables

Rassembler cuisine, salle à manger, salon, bureau et chambre dans une seule pièce, c’est le défi relevé par ce petit appart.
Tout y est pensé pour optimiser l’espace et l’accent y est mis sur du mobilier escamotable et modulable.
Côté repas, la table à manger est relevable et des bancs coffres déplaçables font office d’assises.
Tout y est pensé pour optimiser l’espace et l’accent y est mis sur du mobilier escamotable et modulable.
Même principe pour le coin bureau escamotable et dans le salon avec une table basse et des sièges pouvant se ranger sous le sofa.
Pour le couchage, une armoire lit se déplie au-dessus du canapé : voilà comment créer une chambre dans un studio avec astuce !
- Réalisation : Géraldine Laferté
- Photo : Stéphane Deroussent